top of page
Projects
Contact
More...
Use tab to navigate through the menu items.
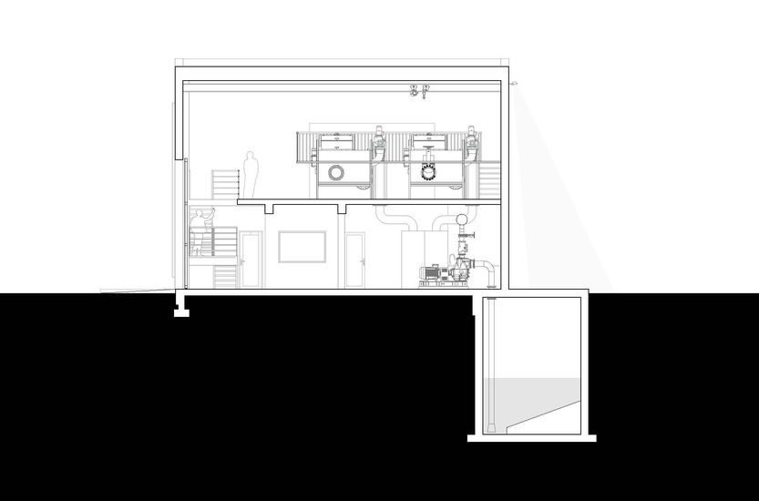
Egilsstaðir
industrial/infrastructure
Melshorn
Sewage Treatment Plant
Ongoing
< Projects
bottom of page